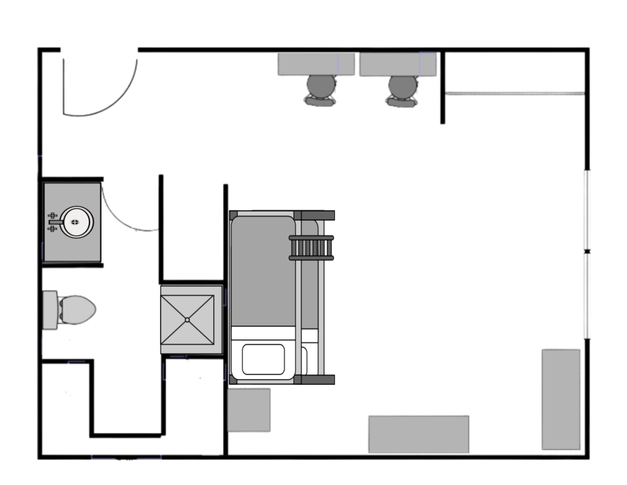
Miramar, Traditional, Residence Hall
$3,150.00 per semester/per person

Unit Features
- Private bedroom
- Private bathroom
- Furnished
- Hardwood-style flooring (Entryways & Bathroom)
- Carpeting (Bedroom)
- Desk with chair
Utilities
- Electricity
- Internet
- Water
- Sewer
- Trash
Traditional Residence Hall Walkthrough
Rates/installments, fees, caps, promotions, deadlines, amenities, and utilities included are subject to change. Units do not have closet doors.
Rates/installments do not represent a monthly rental amount (and are not prorated), but rather the total base rent due for the lease term divided by the number of installments. Square footage and/or dimensions are approximations and may vary between units. Select units may include ADA accessible features.